Lokal w ścisłym centrum Darłowa
Darłowo Pokaż na mapie ›
Ogłoszenie archiwalne Wygasło: Niedziela, 28 Wrzesień, 2025 21:46
1 910 000 zł
Szczegóły ogłoszenia
- Kategoria: Biura i lokale / Sprzedaż
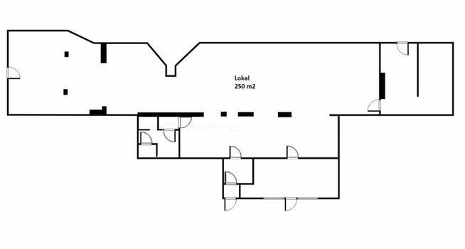
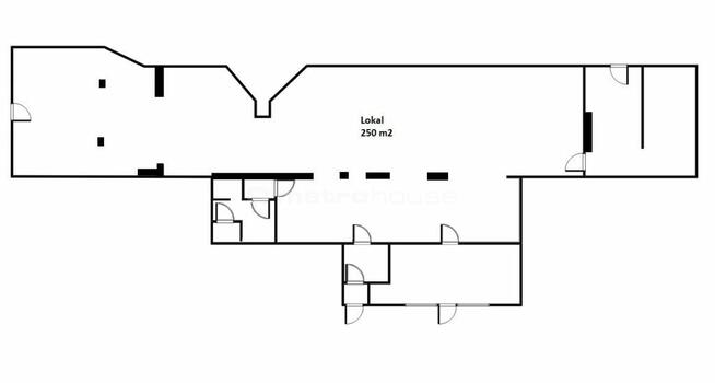
- Powierzchnia:250 m2
- Sprzedaż:Pośrednik
- Cena: 1 910 000 zł
Opis oferty
Jedyny taki lokal w Darłowie !Doskonała lokalizacja- Plac Kościuszki Plac Kościuszki stanowi dawny rynek miejski z centralnie umiejscowionym Ratuszem. Wzdłuż placu usytuowane są budynki mieszkalne w zabudowie zwartej z lokalami usługowymi w przyziemiu. W odległości ok. 50 m przebiega ulica Powstańców Wielkopolskich, która to w znacznej mierze użytkowana jest jako deptak spacerowy.
Lokal w pow. 250 m/kw użytkowany jako sklep sieciowy RTV składający się z szeregu sal sprzedaży i zaplecza magazynowego. Teren w pełni uzbrojony w media : sieć elektroenergetyczną, wodociągową, kanalizację ogólnospławną, gazową, częściowo kanalizację deszczową. Budynki wybudowane w latach przedwojennych .
Przeznaczenie w miejscowym planie zagospodarowania przestrzennego A9MS - zabudowa śródmiejska mieszkalno-usługowa. Inwestycja w tej lokalizacji to gwarantowana lokata kapitału na długie lata z korzystną stopą zwrotu!
Zapraszam na prezentacje!
Czy wiesz, że możemy przygotować dla Ciebie prezentację on-line nieruchomości? Skontaktuj się z naszym Agentem i zapytaj o szczegóły.
Pomimo, iż Doradcy Metrohouse przykładają szczególną staranność do rzetelnego prezentowania informacji o nieruchomości, nie zawsze jest możliwa weryfikacja wszystkich danych przekazanych od osób trzecich. Niniejsza prezentacja oferty nie jest ofertą w rozumieniu Kodeksu Cywilnego i ma charakter wyłącznie informacyjny.
Sprawdź zainteresowanie tym ogłoszeniem
Wyświetlenia
Data dodania
Ostatnio widziany
Obserwujących
Wysłane zapytania
Odsłony telefonu
Powiadom o podobnych ogłoszeniach
Lokalizacja: Darłowo
Kategoria: Nieruchomości » Biura i lokale » Sprzedaż
Cena: od 1623500 zł do 2196500 zł Powierzchnia : od 213 m2 do 288 m2
Chcę otrzymywać powiadomienia o nowych ofertach
To ogłoszenie jest archiwalne i może być nieaktualne.
Paweł Badura
Konto firmowe
Na Lento.pl od 21 kwi 2013
Strona użytkownika
- Wypromuj ogłoszenie
- Zgłoś naruszenie
- Edytuj/usuń ogłoszenie
- Udostępnij ogłoszenie
- Dodaj na Facebook







